AK-HOME

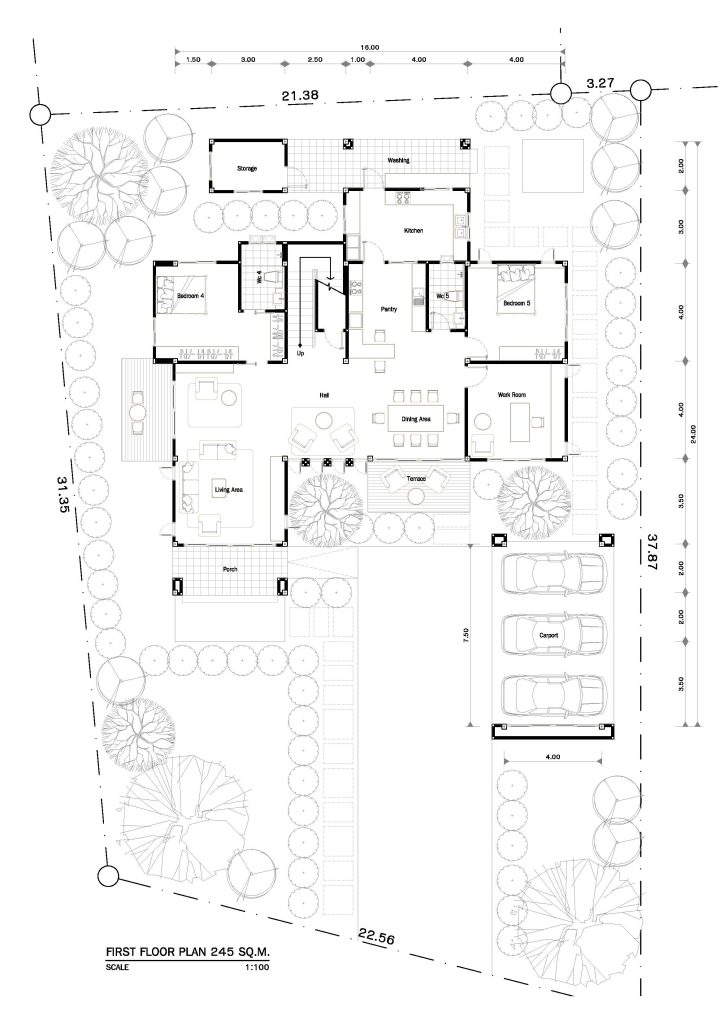
แบบบ้าน PJ640038

เริ่มต้นความสุข และความอบอุ่น ของทุกคนในครอบครัว เราจึงมุ่งมั่น ทุ่มเท ให้ความสำคัญกับทุกรายละเอียดของงาน อย่างมืออาชีพ

เพื่อสร้างความพึงพอใจสูงสุดสำหรับลูกค้า ด้วยการบริการแบบครบวงจร พร้อมให้คำปรึกษากับทีมงานสถาปนิกและวิศวกรที่มีคุณภาพ พร้อมลงพื้นที่สำรวจสภาพแวดล้อมทิศทางแดด ลม ระดับถนน ระดับพื้นดิน กำแพงดิน ฯลฯ บริเวณที่ดินปลูกสร้างเป็นขั้นตอนแรก เพื่อนำมาสู่การออกแบบบ้าน การวิเคราะห์ทางวิศวกรรม ที่เหมาะสมกับพื้นที่ และบริบทโดยรอบ ให้ได้แสงที่ดี ลมที่ดี ให้บ้านอยู่สบาย มั่นคง แข็งแรง

LAY OUT

ผลงานของเรา

Other Project

14 July

PJ630001

แบบบ้าน PJ630001 เริ่มต้นความสุข และความอบอุ่น ของทุกคนในครอบครัว เราจึงมุ่งมั่น ทุ่มเท ให้ความสำคัญกับทุกรายละเอียดของงาน อย่างมืออาชีพ เพื่อสร้างความพึงพอใจสูงสุดสำหรับลูกค้า ด้วยการบริการแบบครบวงจร พร้อมให้คำปรึกษากับทีมงานสถาปนิกและวิศวกรที่มีคุณภาพ พร้อมลงพื้นที่สำรวจสภาพแวดล้อมทิศทางแดด ลม ระดับถนน ระดับพื้นดิน กำแพงดิน ฯลฯ บริเวณที่ดินปลูกสร้างเป็นขั้นตอนแรก เพื่อนำมาสู่การออกแบบบ้าน การวิเคราะห์ทางวิศวกรรม ที่เหมาะสมกับพื้นที่ และบริบทโดยรอบ ให้ได้แสงที่ดี ลมที่ดี ให้บ้านอยู่สบาย มั่นคง แข็งแรง ให้คำปรึกษาเกี่ยวกับการปลูกสร้างบ้าน ออกแบบก่อสร้าง โดยทีมสถาปนิก และวิศวกร ออกแบบตกแต่งภายใน โดยทีมงานคุณภาพ การยื่นขออนุญาตก่อสร้าง บริการทางด้านสินเชื่อบ้าน การขอมิเตอร์ไฟฟ้า มิเตอร์น้ำประปา เลขที่บ้าน สำรวจพื้นที่จริงก่อนเริ่มดำเนินการ ประเมินราคา พร้อมจัดทำเอกสาร Quotation & BOQ ควบคุมบริหารงานก่อสร้าง LAY OUT Client : คุณต่าย Location : สระแก้ว Type : […]

Read More
14 July

PJ630002

แบบบ้าน PJ630002 เริ่มต้นความสุข และความอบอุ่น ของทุกคนในครอบครัว เราจึงมุ่งมั่น ทุ่มเท ให้ความสำคัญกับทุกรายละเอียดของงาน อย่างมืออาชีพ เพื่อสร้างความพึงพอใจสูงสุดสำหรับลูกค้า ด้วยการบริการแบบครบวงจร พร้อมให้คำปรึกษากับทีมงานสถาปนิกและวิศวกรที่มีคุณภาพ พร้อมลงพื้นที่สำรวจสภาพแวดล้อมทิศทางแดด ลม ระดับถนน ระดับพื้นดิน กำแพงดิน ฯลฯ บริเวณที่ดินปลูกสร้างเป็นขั้นตอนแรก เพื่อนำมาสู่การออกแบบบ้าน การวิเคราะห์ทางวิศวกรรม ที่เหมาะสมกับพื้นที่ และบริบทโดยรอบ ให้ได้แสงที่ดี ลมที่ดี ให้บ้านอยู่สบาย มั่นคง แข็งแรง ให้คำปรึกษาเกี่ยวกับการปลูกสร้างบ้าน ออกแบบก่อสร้าง โดยทีมสถาปนิก และวิศวกร ออกแบบตกแต่งภายใน โดยทีมงานคุณภาพ การยื่นขออนุญาตก่อสร้าง บริการทางด้านสินเชื่อบ้าน การขอมิเตอร์ไฟฟ้า มิเตอร์น้ำประปา เลขที่บ้าน สำรวจพื้นที่จริงก่อนเริ่มดำเนินการ ประเมินราคา พร้อมจัดทำเอกสาร Quotation & BOQ ควบคุมบริหารงานก่อสร้าง LAY OUT Client : คุณโก้ Location : ระยอง Type : […]

Read More
14 July

PJ630004

แบบบ้าน PJ630004 เริ่มต้นความสุข และความอบอุ่น ของทุกคนในครอบครัว เราจึงมุ่งมั่น ทุ่มเท ให้ความสำคัญกับทุกรายละเอียดของงาน อย่างมืออาชีพ เพื่อสร้างความพึงพอใจสูงสุดสำหรับลูกค้า ด้วยการบริการแบบครบวงจร พร้อมให้คำปรึกษากับทีมงานสถาปนิกและวิศวกรที่มีคุณภาพ พร้อมลงพื้นที่สำรวจสภาพแวดล้อมทิศทางแดด ลม ระดับถนน ระดับพื้นดิน กำแพงดิน ฯลฯ บริเวณที่ดินปลูกสร้างเป็นขั้นตอนแรก เพื่อนำมาสู่การออกแบบบ้าน การวิเคราะห์ทางวิศวกรรม ที่เหมาะสมกับพื้นที่ และบริบทโดยรอบ ให้ได้แสงที่ดี ลมที่ดี ให้บ้านอยู่สบาย มั่นคง แข็งแรง ให้คำปรึกษาเกี่ยวกับการปลูกสร้างบ้าน ออกแบบก่อสร้าง โดยทีมสถาปนิก และวิศวกร ออกแบบตกแต่งภายใน โดยทีมงานคุณภาพ การยื่นขออนุญาตก่อสร้าง บริการทางด้านสินเชื่อบ้าน การขอมิเตอร์ไฟฟ้า มิเตอร์น้ำประปา เลขที่บ้าน สำรวจพื้นที่จริงก่อนเริ่มดำเนินการ ประเมินราคา พร้อมจัดทำเอกสาร Quotation & BOQ ควบคุมบริหารงานก่อสร้าง LAY OUT Client : คุณณรงค์ศักดิ์ Location : ระยอง Type : […]

Read More